Anchor
Collection
Nautical Collection
Foundation
Crawl / Slab
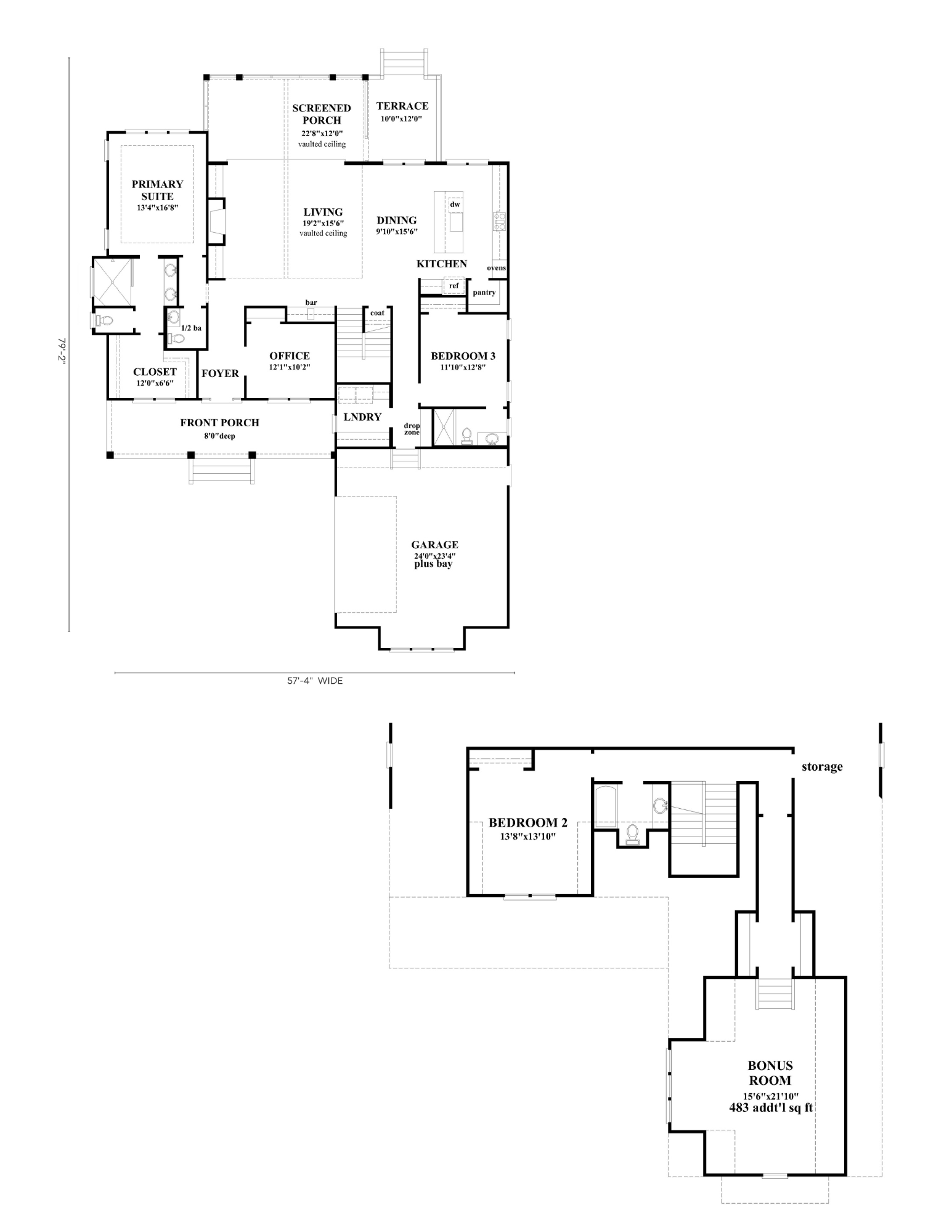
Footprint
57'4" Wide x 79'2" Deep
Features
• 2,461 SQFT – starting at
• 2,944 SQFT – w/ opt. bonus room
• Fully Customizable
• Optional Bonus Room
• Front Covered Porch
• Screened Porch
• Rear Terrace
• Screened Porch
• Drop Zone
• Wet Bar
• First-Level Study
• First-Level Primary Suite
Want to Learn More About this Home Plan?
Use the form below to contact our New Home Consultant, Janet Kimberly!









