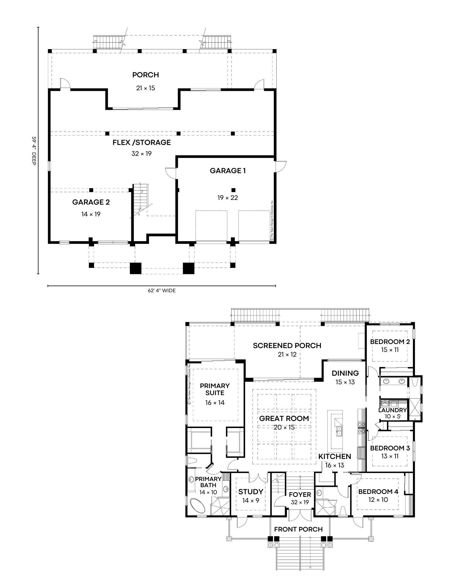
Bonaire

Caribbean Collection

2,682

SQFT

4

BED

4

BATH

2

GAR

2

STORY

Foundation

Raised Pilings

Footprint

60” Wide x 68” Deep

Features

• Fully Customizable
• Front Covered Porch
• Rear Covered Porch
• Rear Screened Porch
• Main-Level Study
• Main-Level Primary Suite
• Open Layout Main Living Area

Floor Plan

Contact Us to Learn More or to Schedule a Tour

Use the form below to get in touch with our team - We're here to help!