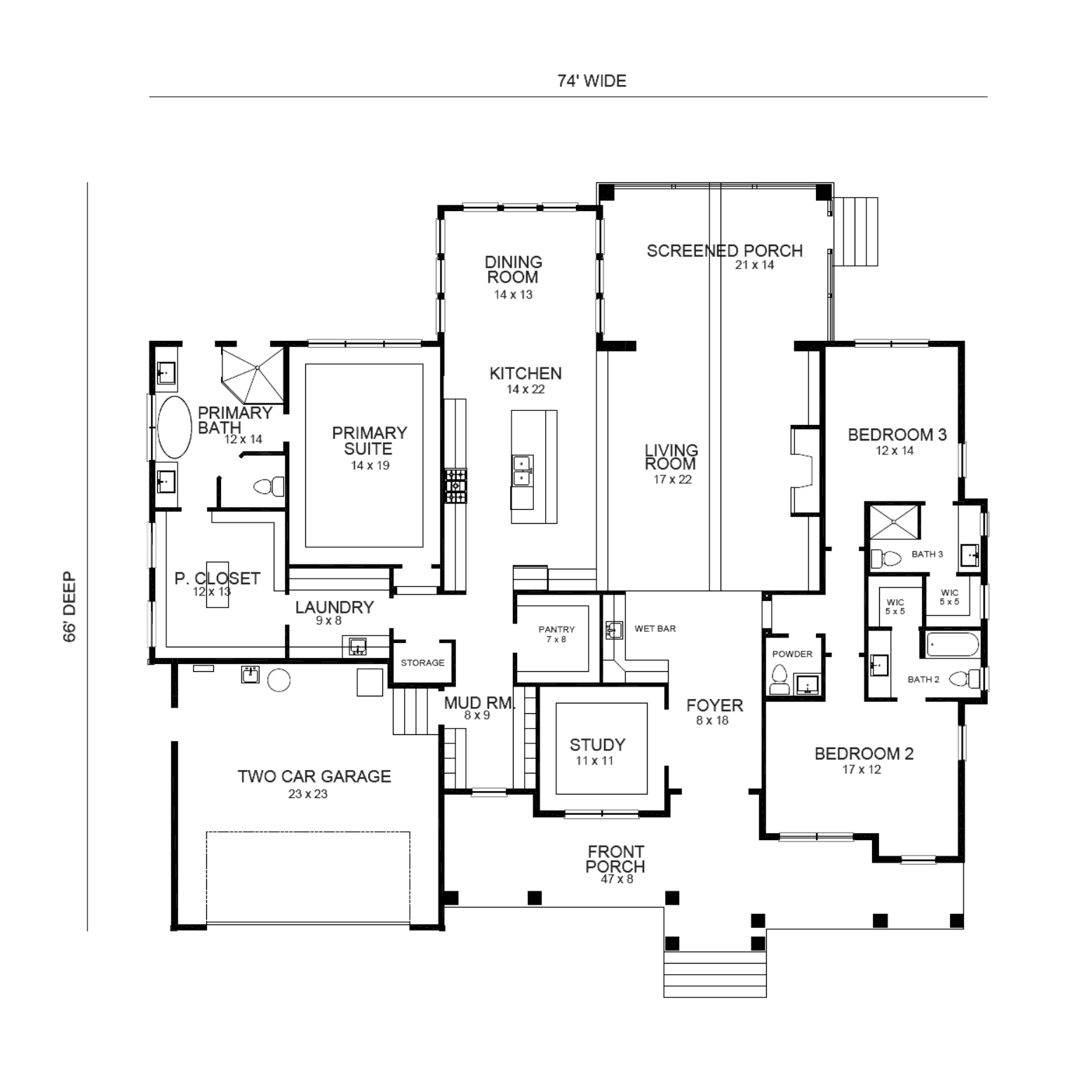
Cedar Grove

Highland Collection

2,930

SQFT

3

BED

3.5

BATH

2

GAR

1

STORY

Foundation

Crawl / Slab

Footprint

54' Wide x 86" Deep

Features

• Fully Customizable
• Rear Screened Porch
• Rear Patio
• Front Covered Porch
• Dedicated Study
• Open Layout Main Living Area

Floor Plan

Want to Learn More About this Home Plan?

Use the form below to contact our New Home Consultant, Janet Kimberly