Compass
Collection
Nautical Collection
Foundation
Crawl / Slab
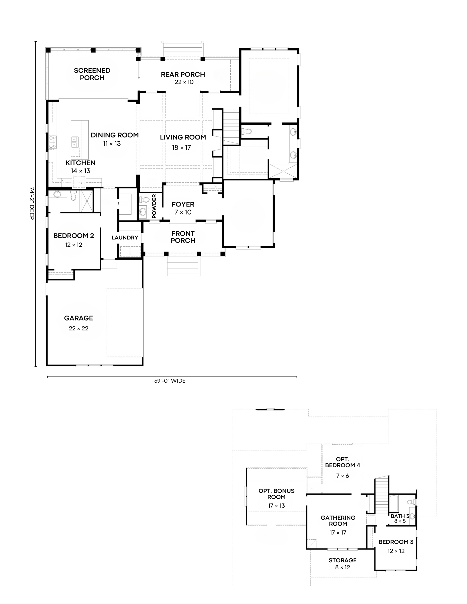
Footprint
59' Wide x 74'2" Deep
Features
• Fully Customizable
• Optional Bedroom 4
• Optional Bonus Room
• Front Covered Porch
• Rear Covered Porch
• Rear Screened Porch
• Second-Floor Gathering Room
• First-Floor Study
• First-Floor Primary Suite
• Open Layout Main Living Area
Want to Learn More About this Home Plan?
Use the form below to contact our New Home Consultant, Janet Kimberly!








