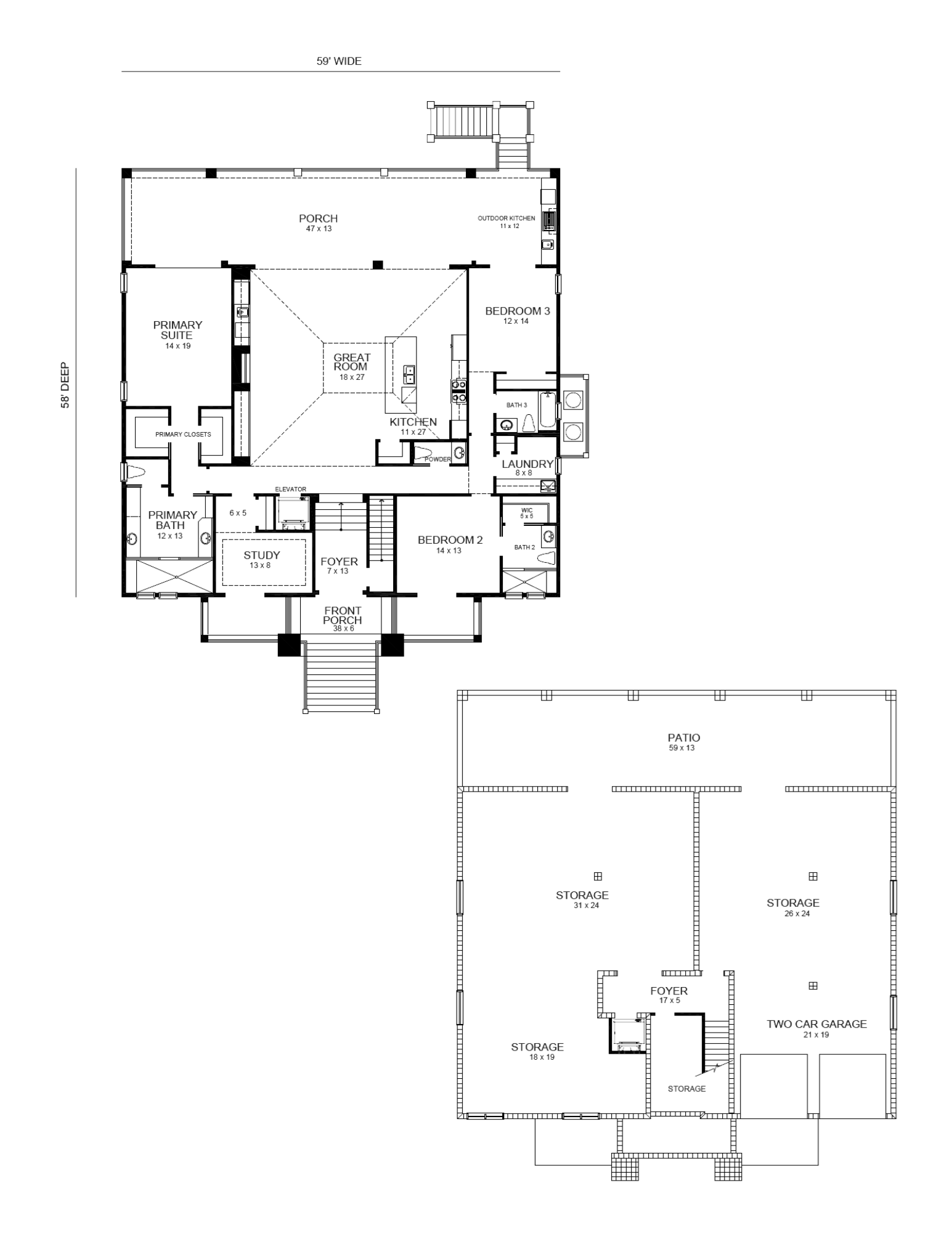
Foundation
Raised Pilings
Footprint
59’4” Wide x 66’4” Deep
Features
• Fully Customizable
• Front Covered Porch
• Rear Covered Patio
• Rear Covered Porch
• Elevator
• Main-Level Study
• Main-Level Primary Suite
• Open-Layout Main Living Area
Want to Learn More About this Home Plan?
Use the form below to contact our New Home Consultant, Janet Kimberly




