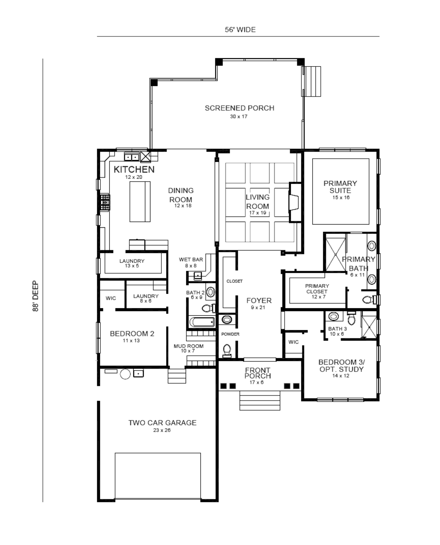
Meridian

Tidal Collection

2,515

SQFT

2

BED

2.5

BATH

2

GAR

1

STORY

Foundation

Crawl / Slab

Footprint

56' Wide x 68'2" Deep

Features

• Fully Customizable
• Front Covered Porch
• Rear Screened Porch
• Mudroom
• Wet Bar
• Optional Study
• Open Layout Main Living Area

Floor Plan

Contact Us to Learn More or to Schedule a Tour

Use the form below to get in touch with our team - We're here to help!