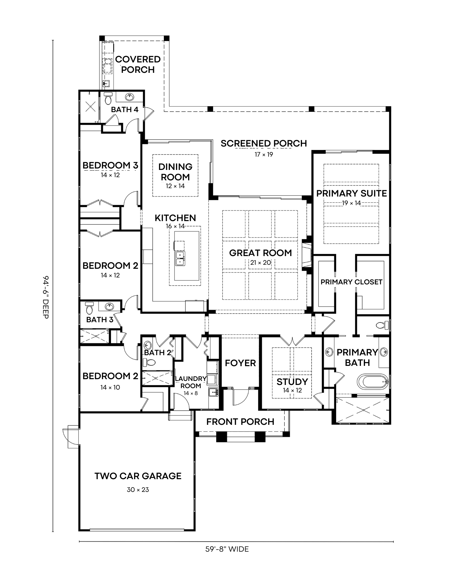
Neptune

Keys Collection

3,078

SQFT

3

BED

3.5

BATH

2

GAR

1

STORY

Foundation

Crawl / Slab

Footprint

59’8” Wide x 94’6” Deep

Features

• Fully Customizable
• Front Covered Porch
• Rear Covered Porch
• Mudroom/Dropzone
• Study
• Open Layout Main Living Area

Floor Plan

Want to Learn More About this Home Plan?

Use the form below to contact our New Home Consultant, Janet Kimberly