Pineview
Collection
Highland Collection
Foundation
Raised Slab
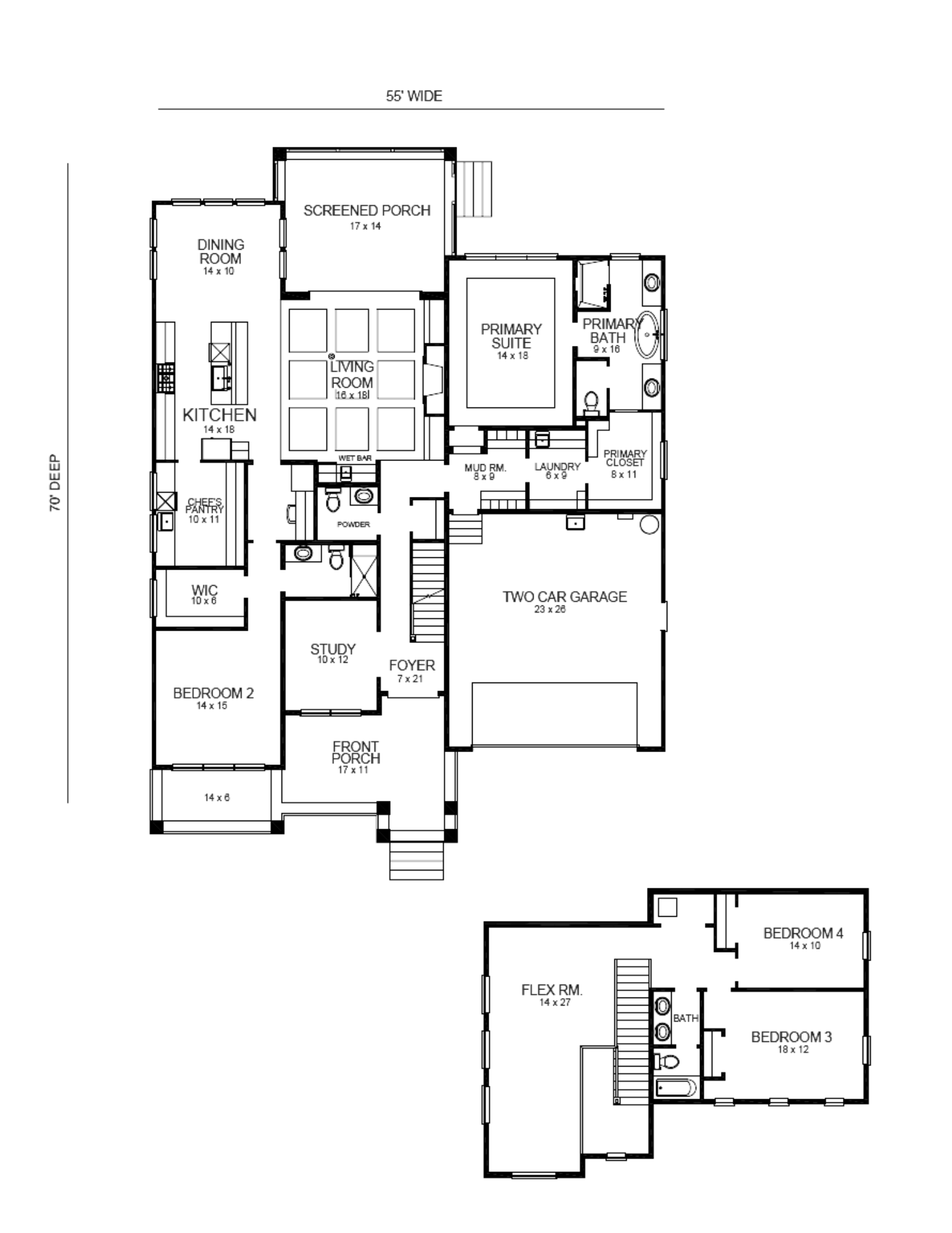
Footprint
56'3" Wide x 75'10" Deep
Features
• Fully Customizable
• Optional 5 Bedroom Layout
• Front Covered Porch
• Rear Screened Porch
• First Level Study
• First Level Primary Suite
• Second Level Flex Space
• Chef’s Pantry
• Ample Mudroom
• Open Layout Main Living
Want to Learn More About this Home Plan?
Use the form below to contact our New Home Consultant, Janet Kimberly!













