Port
Collection
Nautical Collection
Foundation
Crawl / Slab
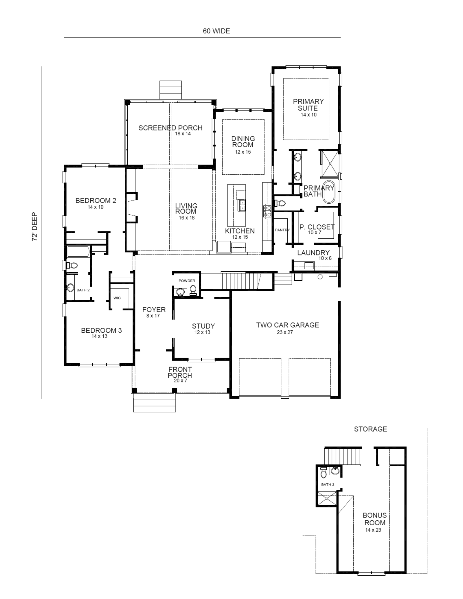
Footprint
59'8" Wide x 71'8" Deep
Features
• 2,576 SQFT – starting at
• 3,008 SQFT – w/ opt. bonus room
• Fully Customizable
• Optional 2nd-Level Bonus Room
• Front Covered Porch
• Rear Screened Porch
• First-Level Study
• First-Level Primary Suite
• Open Layout Main Living Area
Want to Learn More About this Home Plan?
Use the form below to contact our New Home Consultant, Janet Kimberly!










