Sago

Florida Palms Collection

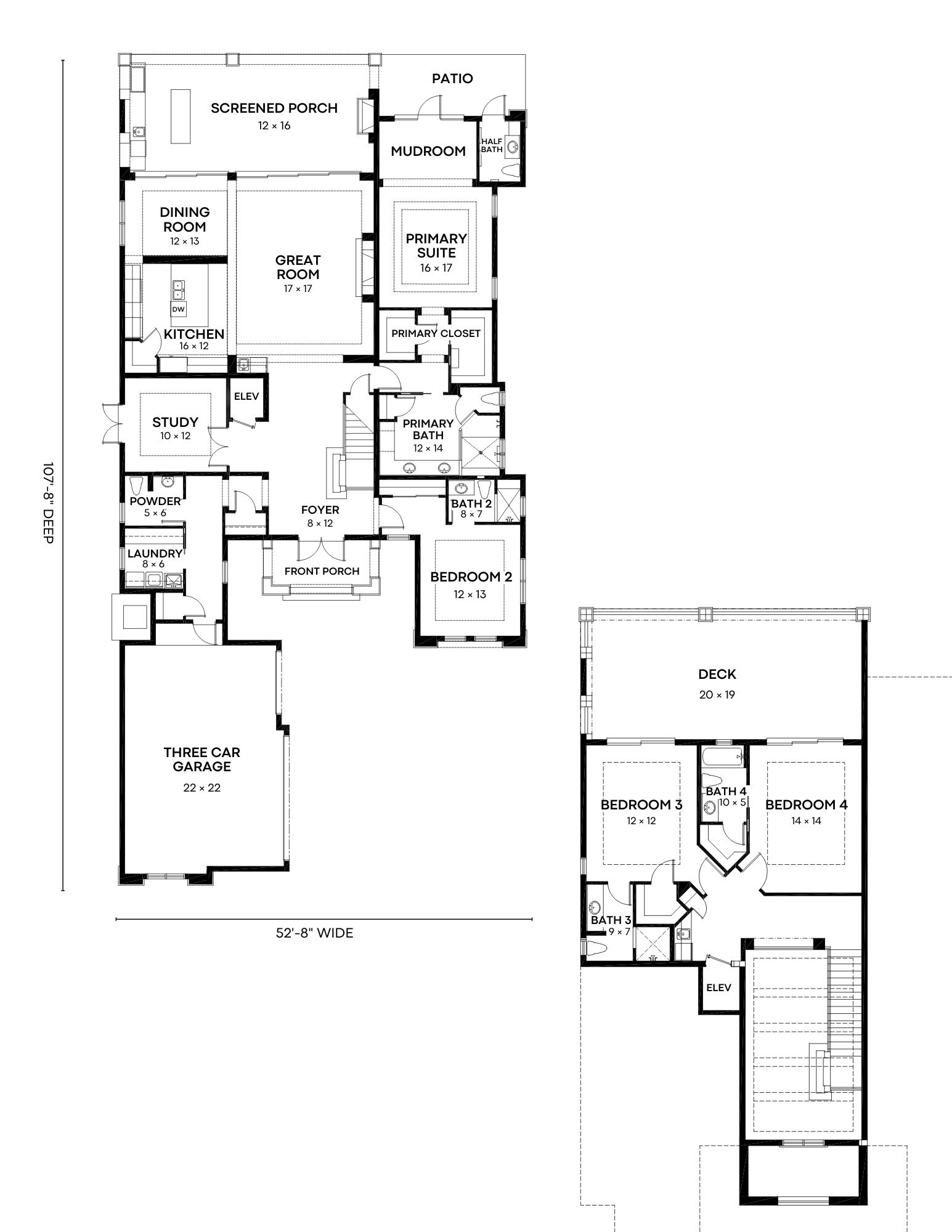
3,896

SQFT

4

BED

4.5

BATH

2

GAR

2

STORY

Foundation

Crawl / Slab

Footprint

52’8” Wide x 107’8” Deep

Features

• Fully Customizable
• Interior Elevator
• Rear Covered Patio
• Rear Covered Porches
• Front Covered Porch
• Mudroom
• Study
• First-Floor Primary Suite
• Open Layout Main Living Area

Floor Plan

Contact Us to Learn More or to Schedule a Tour

Use the form below to get in touch with our team - We're here to help!