Spinnaker
Collection
Nautical Collection
Foundation
Crawl / Slab
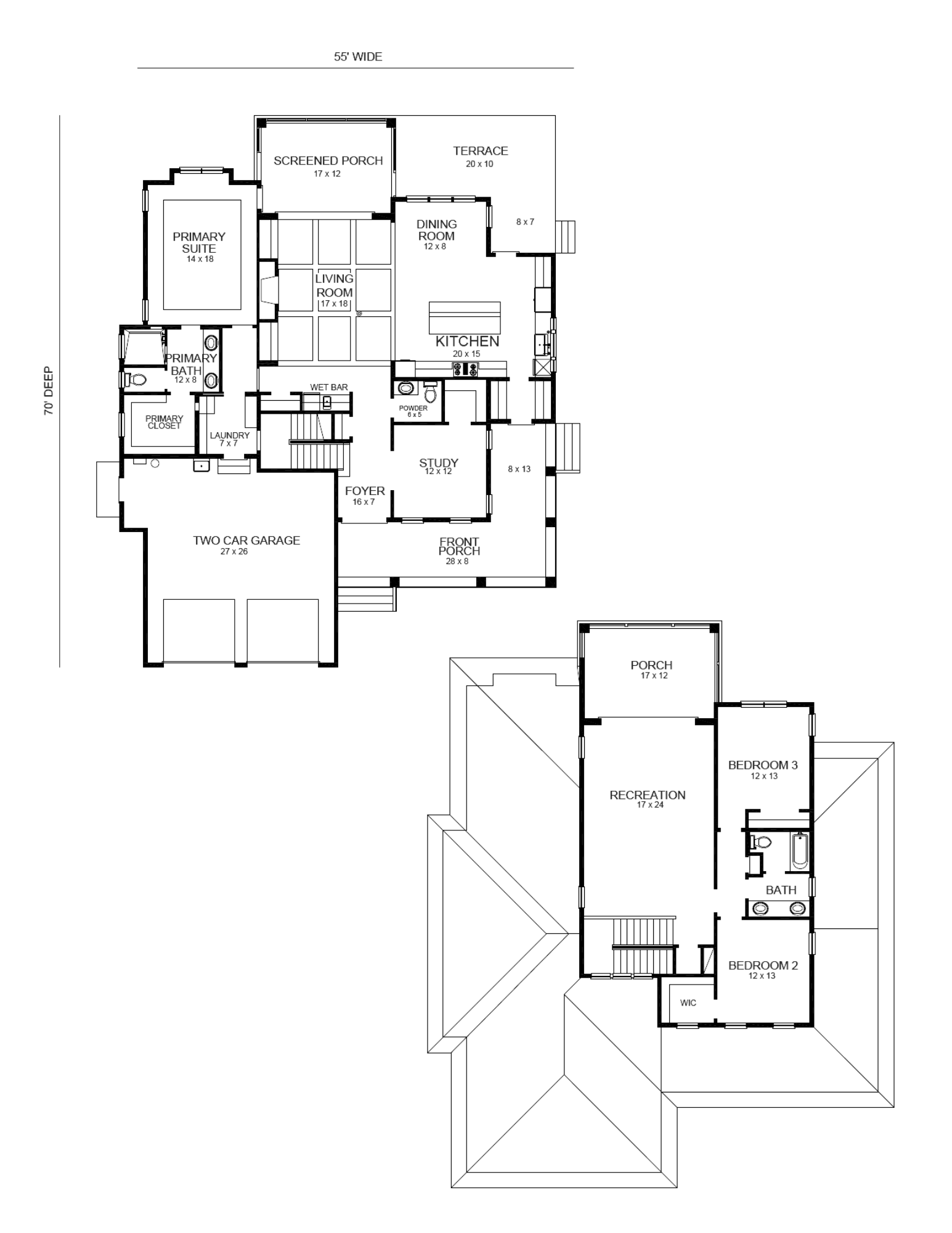
Footprint
55'2" Wide x 69'9" Deep
Features
• Fully Customizable
• Front Covered Porch
• Rear Covered Porch
• Rear Terrace
• Screened Porch
• Golf Cart Garage
• Wet Bar
• Recreation Room
• First-Floor Study
• First-Floor Primary Suite
• Open Layout Main Living Area
Want to Learn More About this Home Plan?
Use the form below to contact our New Home Consultant!







